型号含义

产品特点
H级绝缘:
干式变压器的绝缘耐热等级有:B、F、H、C等。耐热温度分别为: 130C、155C、180C、220C,该产品采用了杜邦新材料、新工艺,生产品的SG(B)10型干式变压器绝缘耐热等级已达H级,关键部位绝缘耐热等级已达C级。
最热点温度(供参考):

可靠
SG(B)10型新产品的特殊线圈设计、工艺及材料,使产品三防性能良好(防潮、防霉、防烟雾),更能承受热冲击,永无龟裂无局部放电产生以N0mex为基础的绝缘系统,在变压器的整个使用寿命期间都保持良好的电性能和机械性能,N0mex产品不易老化,耐收缩及抗压缩,加上弹力特强,因此可以确保变压器即使在使用数年之后线圈仍保持结构紧密,并且能够承受短路压力。
过载能力强
SGB10型新产品采用新结构、新材料、新工艺、散热条件好、热寿命长,过负荷能力强,在百分之120过负荷下可长期可靠运行。在IP23环境下无须强迫风冷,仍可长期满负荷运行。
使用条件
同GB6450-1986《干式电力变压器》12条,当环境高温度>40C,海拔高度> 1000m时,按国际有关规定进行修正,要求用户订货时提出。
引用标准
GB6450-1986《干式电力变压器》
GB/T10228-2008《干式电力变压器技术参数和要求》
GB/T17211-1998《干式电力变压器负载导规》
GBI094.3-2003《电力变压器绝缘水平和绝缘试验外绝缘的空气间隙》
Gb4208- -2008《外壳防护等级(1P代码)》
GB/T10088-.2004《6 ~ 220KV级变压器声级》
JB/T56009-1998《干式电力变压器产品质量分等》
SGB10-100- 2500/10KV H级干式变压器技术参数

注:我公司SGB 10系列产品企标的局部放电≤5Pc。
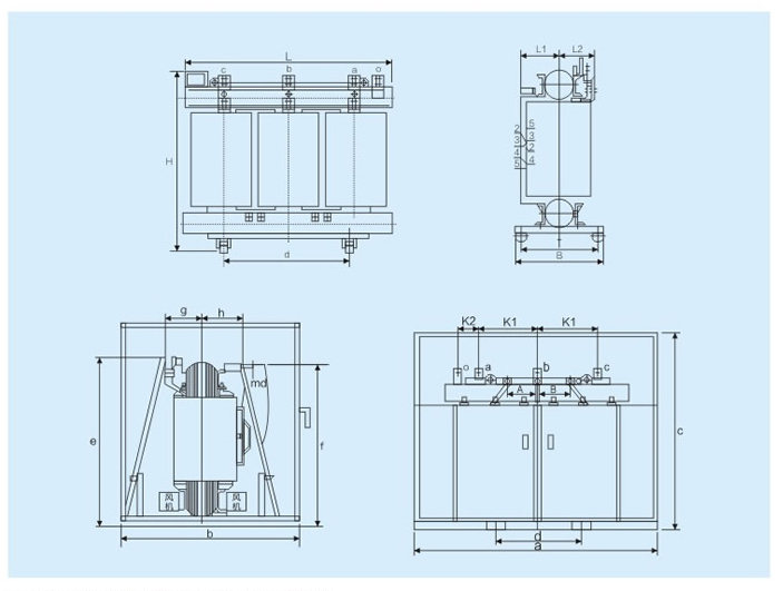
SGB10系列H级绝缘三相干式电力变压器外型尺寸表

